2-к. 45,4 м2, 1/5 эт. Николо-Коз.
Обзор№ - 24128
| Стоимость | 3 490 000 |
|---|---|
| Ремонт | Требует ремонта |
| Балкон | Нет |
| Год постройки | 1965 |
| Отопление | Центральное |
| Санузел | Совмещенный |
| Вид из окна | во двор |
| Тип дома cian | Железобетонные панели |
| Комнат в квартире | 2 |
| Площадь, кв.м. | 45.4 |
| Жилая площадь | 13.9 |
| Площадь кухни, кв.м. | 6.2 |
| Этаж | 1 |
| Этажность | 5 |
| Материал стен | Панельный |
| Тип комнат | раздельные |
| Состояние | Плохое |
Адрес
| Населенный пункт | Калуга |
|---|---|
| Район города | Ленинский |
| Микрорайон | микрорайон Победы Площадь |
| Улица | улица Николо-Козинская |
| Номер дома | 3 |
В избранное 2-к. 45,4 м2, 1/5 эт. Николо-Коз.
2-комн. квартира с изолированными комнатами в центре города.
Район площади Победы, улица Николо-Козинская, дом 3 - 5-этажный панельный дом, окружённый зеленью, и расположенный в самом центре города.
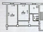
На 1 этаже продаётся неугловая 2-комн. квартира 45,4 кв.м. с изолированными комнатами 13,9 + 13,9 кв.м. Совмещённый санузел. Все окна смотрят во двор, на северо-восток.
Отопление центральное, горячая вода от газовой колонки, плита газовая.
Квартира без ремонта, что позволит с нуля сделать всё под себя.
Без занижений и перепланировок.
В шаговой доступности вся инфраструктура центральной части города.

















































