1-к. 38 м2, 1/9 эт. Азаровская
| Стоимость | 3 458 000 |
|---|---|
| Ремонт | Требует ремонта |
| Балкон | Лоджия |
| Год постройки | 2024 |
| Отопление | Индивидуальное |
| Санузел | Совмещенный |
| Вид из окна | во двор |
| Тип дома cian | Монолитный |
| Комнат в квартире | 1 |
| Площадь, кв.м. | 38 |
| Жилая площадь | 15.6 |
| Площадь кухни, кв.м. | 9.2 |
| Этаж | 1 |
| Этажность | 9 |
| Материал стен | Монолитный |
| Тип комнат | раздельные |
| Состояние | Без отделки |
| Населенный пункт | Калуга |
|---|---|
| Район города | Московский |
| Микрорайон | микрорайон Терепец |
| Улица | улица Азаровская |
| Номер дома | 40к4 |
Мкрн.Терепец. ЖК "МАРС". Жилой квартал расположен вдали от городского шума, при этом с прекрасной инфраструктурой: школа, детский сад, остановка общественного транспорта, магазины, аптеки, поликлиника. Проект застройки предусматривает асфальтирование проездов, установку детской площадки и озеленение территории.
Новый 1-подъездный 9-этажный монолитно-кирпичный дом по адресу Азаровская 40к4. Дом сдан летом 2024.
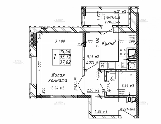
В продаже 1-комн. квартира 38 кв.м. с комнатой 15,6 кв.м. и кухней 9,2 кв.м. Совмещённый санузел. Застеклённая лоджия 4,2 кв.м. Прихожая отделена от остальной части квартиры - грязь с обуви по квартире не разносится. Высота потолков более 3 м.
Индивидуальное отопление (2-контурный настенный газовый котёл).
В квартире производится: гидроизоляции полов в санузле, ввод труб водоснабжения и канализации в квартиру (стояки), трубная разводка отопления с установкой радиаторов, установка двухконтурного котла с подключением к газовым и электросетям, установка входной двери и счетчиков, электрическая разводка до квартиры, оконные блоки из ПВХ профилей с двухкамерным стеклопакетом, остекление лоджии из ПВХ профилей с одинарным остеклением.











































