2к 74,5 м2, Академический 3-й
| Стоимость | 6 702 300 |
|---|---|
| Название ЖК | Академический |
| Стадия строительства | строится |
| Год постройки | 2025 |
| Площадь, кв.м. | 74.47 |
| Площадь кухни, кв.м. | 17.48 |
| Жилая площадь | 35.44 |
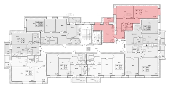
| Этаж | 8 |
| Этажность | 9 |
| Комнат в квартире | 2 |
| Материал стен | Кирпич |
| Отопление | Индивидуальное |
| Идентификатор корпуса жилого комплекса в базе Яндекса | 3319673 |
| Статус Недвижимости Авито | Квартира |
| Тип парковки | На улице |
| Ремонт | Требует ремонта |
| Способ связи avito | По телефону и в сообщениях |
| Узаконена ли планировка | Есть |
| Населенный пункт | Калуга |
|---|---|
| Район города | Ленинский |
| Микрорайон | микрорайон Правый Берег |
| Улица | проезд 3-й Академический |
| Номер дома | 10 |
3-й Академический проезд, д.10 - девятиэтажный кирпичный 4-подъездный дом с поквартирным индивидуальным отоплением завершит комплекс из трёх домов.
Дом удобно расположен на Правобережье в районе со сформированной и богатой инфраструктурой. Школы, сады, магазины, торговые центры, кафе и рестораны, спортивные комплексы - всё рядом. При этом до центра города 15 минут.
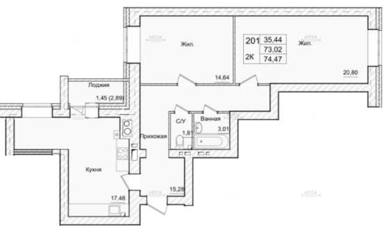
В продаже 2-комн. квартира 74,5 кв.м. с изолированными комнатами 20,8 + 16,6 кв.м. и кухней-столовой 17,5 кв.м. Из кухни выходит лоджия 2,9 кв.м. Раздельный санузел. Вместительная прихожая.
В квартире выполнена стяжка, штукатурка по периметру. Электрика введена в квартиру. Установлен настенный двухконтурный газовый котёл, разведено отопление. Окна стеклопакеты ПВХ. Входная дверь технологическая. Межкомнатных перегородок нет. Остекления на лоджии нет.
Благоустроенная придомовая территория с детской площадкой и парковочным пространством
Возможна покупка с использованием льготной ипотеки.
Квартиры реализуются в соответствии с 214-ФЗ с регистрацией договоров участия в долевом строительстве.
Срок сдачи 4 квартал 2025 года.
Звоните сегодня! С каждым днём свободных квартир в продаже остаётся всё меньше.

















