2-к. 76,5 м2, 4/5 эт, Заречная
| Стоимость | 10 000 000 |
|---|---|
| Ремонт | Евро |
| Балкон | Лоджия |
| Год постройки | 2019 |
| Отопление | Индивидуальное |
| Санузел | Раздельный |
| Вид из окна | во двор |
| Комнат в квартире | 2 |
| Площадь, кв.м. | 76.5 |
| Жилая площадь | 29.6 |
| Площадь кухни, кв.м. | 26.5 |
| Этаж | 4 |
| Этажность | 5 |
| Материал стен | Кирпич |
| Тип комнат | раздельные |
| Состояние | Отличное |
| Населенный пункт | Калуга |
|---|---|
| Район города | Ленинский |
| Улица | улица Заречная |
| Номер дома | 18в |
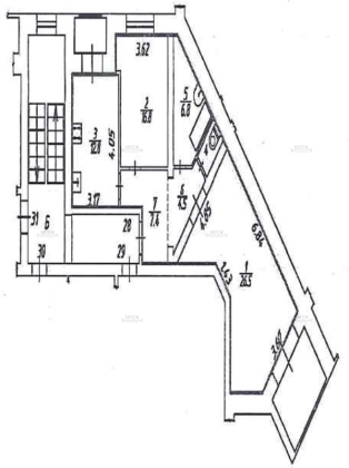
Продаю шикарную 2-хк.кв. в клубном доме на Заречной 18в, с закрытой территорией, охраной и видеонаблюдением, в квартире две изолированных комнаты 12,8 и 16,8 кв. м., кухня-гостиная 26,5 кв.м., прихожая 11,9 кв.м, раздельный санузел.
Квартира уникальная, лучше многих 3-хкомн.квартир, т.к. таких планировок практически нет, а просторная кухня всегда мечта каждой семьи).
Индивидуальное отопление позволит круглый год не думать о том, что отопление еще не включили, а регуляция поможет значительно сэкономить на коммунальных. А теплые полы подарят дополнительный комфорт и уют.
Выгодное расположение - солнце в квартире с утра, а в жаркие послеобеденные часы солнце уже уходит и всегда будет не жарко!
В квартире выполнен идеальный ремонт, использованы дорогие материалы, остаются дорогая мебель и бытовая техника.
В живописном дворе-парке обустроена детская и спортивная площадка.
Дом возведен в развитом районе с благоприятной экологией в 5 минутах езды от центра Калуги.
В шаговой доступности находятся детские сады, школа, поликлиника.
Рядом Губернский парк с семью пудами, горнолыжный центр Квань, бассейны, ледовый дворец, множество сетевых магазинов и детских развлекательных комплексов, гипермаркеты METRO и Глобус.
Кроме этого в районе Правобережье построено несколько новых дорог и дорожных развязок, мост Анненки-Шопино, окружная дорога -Южный объезд.
Отличные соседи.
Эти факторы вызывают рост стоимости жилья в районе Правый берег и дарят комфорт.
Вся стоимость в договоре.







































































