3-к 71м2 1/15 65 лет Победы
| Стоимость | 7 500 000 |
|---|---|
| Ремонт | Евро |
| Балкон | Нет |
| Год постройки | 2019 |
| Отопление | Центральное |
| Санузел | 2 санузла |
| Вид из окна | во двор и на улицу |
| Комнат в квартире | 3 |
| Площадь, кв.м. | 71 |
| Жилая площадь | 38 |
| Площадь кухни, кв.м. | 12.6 |
| Этаж | 1 |
| Этажность | 15 |
| Материал стен | Монолитный |
| Тип комнат | раздельные |
| Состояние | Отличное |
| Населенный пункт | Калуга |
|---|---|
| Микрорайон | микрорайон Правый Берег 2 |
| Улица | улица 65 лет Победы |
| Номер дома | 15 |
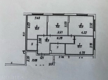
Продажа 3-хк.кв. в ж.к. Лесной, в квартире три изолированных комнаты 13,9 кв.м., 12,5 кв.м. и 11.6 кв.м., прихожая 11,3 кв.м, два санузла, высота потолков 3,3 м!
Есть большой тамбур на две квартиры с отдельной дверью.
Выгодное расположение-солнце в квартире с утра, а в жаркие послеобеденные часы солнце уже уходит и в квартире всегда будет не жарко! Можно использовать под коммерцию!
В квартире выполнен новый ремонт: ламинат и плитка на полах и стенах в санузлах, натяжной потолок, напольные и потолочные плинтуса, обои под покраску уже после оштукатуривания стен и финишной шпатлевки, качественные межкомнатные двери и дорогая входная дверь, сантехника (ванна, унитаз и мойка). Монтаж системы центрального отопления и установка индивидуальных счетчиков отопления на каждый радиатор. Остается кухонный гарнитур со встроенной бытовой техникой (посудомоечная машина, стиральная машина, встроенный духовой шкаф и варочная поверхность с вытяжкой и частично мебель в комнатах.
Подъезды в жилом комплексе будут находиться на уровне земли.
Во-первых, это серьезно облегчает жизнь мамам с малышами,
пожилым людям и владельцам велосипедов. Во-вторых,
зимой никто не поскользнётся на обледеневших ступеньках.
В живописных дворах-парках без автомобилей будут обустроены детские и спортивные площадки. На первых этажах домов разместятся магазины и предприятия сферы услуг.
Комплекс возводится в развитом районе с благоприятной экологией в 10 минутах езды от центра Калуги.
В шаговой доступности находятся 2 детских сада, школа и поликлиники и Губернский парк с семью пудами, горнолыжный центр Квань, бассейн, ледовый дворец, множество сетевых магазинов и детских развлекательных комплексов, гипермаркеты METRO и Глобус.
Кроме этого в районе Правобережье построено несколько новых дорог и дорожных развязок, мост Анненки-Шопино, окружная дорога -Южный объезд. Эти факторы вызывают рост стоимости жилья в районе Правый берег.































































































