Продается квартира
| Стоимость | 6 440 000 |
|---|---|
| Ремонт | Евро |
| Балкон | Лоджия |
| Год постройки | 2010 |
| Отопление | Индивидуальное |
| Можно с питомцами | Нет |
| Можно с детьми | Да |
| Можно курить | Нет |
| Санузел | Совмещенный |
| Вид из окна | во двор |
| Залог | Есть |
| Тип дома cian | Кирпичный |
| Комнат в квартире | 1 |
| Площадь, кв.м. | 55 |
| Жилая площадь | 22 |
| Площадь кухни, кв.м. | 15 |
| Этаж | 8 |
| Этажность | 9 |
| Материал стен | Кирпич |
| Тип комнат | раздельные |
| Состояние | Без отделки |
| Населенный пункт | Калуга |
|---|---|
| Район города | Ленинский |
| Микрорайон | микрорайон Правый Берег |
| Улица | улица Георгия Димитрова |
| Номер дома | 12 |
В продаже видовая 1 комнатная квартира в активно развивающемся микрорайоне Правый берег на улице Георгия Димитрова дом 12.
Квартира расположена на 8 этаже 9ти этажного кирпичного дома 2010 года постройки. Потрясающий вид на водохранилище и бор.
Закрытый паркинг. Ухоженный двор, большое парковочное пространство.
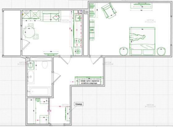
Метраж квартиры 55 кв.м.! Большая комната в 21.4 квадрат и кухня 15 квадратных метра.
В квартире индивидуальное отопление! Застеклённая лоджия, не угловая.
Полностью готова под чистовую отделку/ Квартира готовилась под новый ремонт, выполнены следующие работы: стены и потолки подготовлены под покраску! (грунтовка,штукатурка, шлифовка стен), выравнен и залит пол (готов под укладку ламината, плитки), новая проводка с большим количеством розеток
сделаны выводы под кондиционер, установлена новая входная дверь, заведён интернет кабель и домофон, новый газовый котёл.
В квартире также остается: холодильник, стиральная машина Bosch, новый кондиционер, диван раскладной, шкаф- купе на 3 секции с зеркалами, ванна из чугуна 80*180
Рядом магазин, школа практически во дворе, детский сад через двор. Полностью развитый микрорайон. 10 минут на машине до Сквера Мира,





























