2к 59,4 м2, Комфортная 18
Обзор№ - 21965
| Стоимость | 7 828 220 |
|---|---|
| Ремонт | Требует ремонта |
| Балкон | Лоджия |
| Год постройки | 2025 |
| Отопление | Крышная котельная |
| Санузел | Совмещенный |
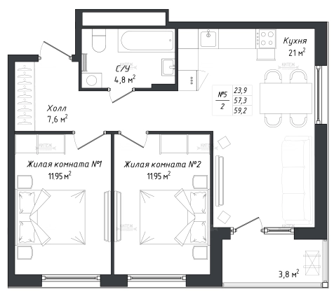
| Комнат в квартире | 2 |
| Площадь, кв.м. | 59.4 |
| Жилая площадь | 23.9 |
| Площадь кухни, кв.м. | 21 |
| Этаж | 14 |
| Этажность | 17 |
| Материал стен | Монолитный |
| Тип комнат | раздельные |
| Состояние | Без отделки |
Адрес
| Населенный пункт | Калуга |
|---|---|
| Район города | Ленинский |
| Микрорайон | микрорайон Правый Берег |
| Улица | улица Комфортная |
| Номер дома | 18 |
В избранное 2к 59,4 м2, Комфортная 18
Правый Берег, ЖК "Комфорт-Парк". Современный жилой комплекс клубного типа с подземным паркингом, закрытой территорией и видеонаблюдением. Собственный парк с аллеей, фонтаном, детскими и спортивными комплексами.
Ул.Комфортная, д.18. Новый 1-подъездный 17-этажный монолитный дом. Высокое качество, строгое соблюдение технологий строительства.
В продаже 2-комн. квартира 59,4 кв.м. с изолированными комнатами 12 + 12 кв.м. и кухней-гостиной 21 кв.м. Из кухни выходит лоджия 3,8 кв.м. Совмещённый с/у. Вместительная прихожая.
Красивые панорамные виды из окон.
Рядом с ЖК ведётся строительство новой школы. В шаговой доступности от дома магазины, торговый центр, зоопарк, горнолыжный комплекс, остановки общественного транспорта.

















