2к, 51м, Марс
| Стоимость | 5 022 500 |
|---|---|
| Ремонт | Требует ремонта |
| Балкон | Лоджия |
| Год постройки | 2024 |
| Отопление | Индивидуальное |
| Санузел | Раздельный |
| Комнат в квартире | 2 |
| Площадь, кв.м. | 51.1 |
| Жилая площадь | 25.9 |
| Площадь кухни, кв.м. | 9 |
| Этаж | 2 |
| Этажность | 9 |
| Материал стен | Монолитный |
| Тип комнат | раздельные |
| Состояние | Без отделки |
| Населенный пункт | Калуга |
|---|---|
| Район города | Московский |
| Микрорайон | микрорайон Терепец |
| Улица | улица Азаровская |
| Номер дома | 40к4 |
2-комнатная квартира в мкр. Терепец.
ЖК "МАРС". Жилой квартал расположен вдали от городского шума, при этом с прекрасной инфраструктурой: школа, детский сад, остановка общественного транспорта, магазины, аптеки, поликлиника. Проект застройки предусматривает асфальтирование проездов, установку детской площадки и озеленение территории.
Новый 1-подъездный 9-этажный монолитно-кирпичный дом. Дом сдан летом 2024.
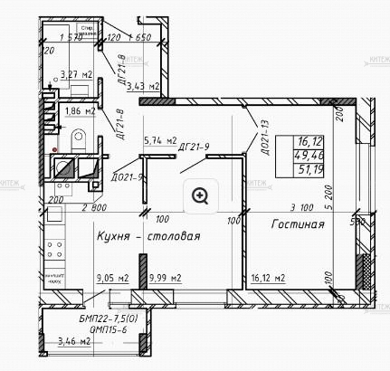
В продаже 2-комн. квартира 51,1 кв.м. с комнатами 16,1 + 9,9 кв.м. и кухней 9 кв.м. Есть техническая возможность убрать стену между кухней и соседней комнатой, получив кухню-гостиную 18,8 кв.м. Раздельный санузел. Застеклённая лоджия 3,5 кв.м. В прихожей ниша под шкаф-купе.
Индивидуальное отопление (2-контурный настенный газовый котёл).
В квартире производится: гидроизоляции полов в санузле, ввод труб водоснабжения и канализации в квартиру (стояки), трубная разводка отопления с установкой радиаторов, установка двухконтурного котла с подключением к газовым и электросетям, установка входной двери и счетчиков, электрическая разводка до квартиры, оконные блоки из ПВХ профилей с двухкамерным стеклопакетом, остекление лоджии из ПВХ профилей с одинарным остеклением.























