1-к. квартира, 44 м², 11/17 эт.

Обзор
Стоимость
7 500 000
РемонтЕвро
БалконБалкон
Год постройки2015
ОтоплениеКрышная котельная
СанузелСовмещенный
Вид из окнаво двор, на солнечную сторону
Комнат в квартире1
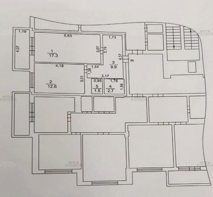
Площадь, кв.м.44
Жилая площадь17.3
Площадь кухни, кв.м.12.6
Этаж11
Этажность17
Материал стенМонолитный
Тип комнатсмежные
Адрес
Населенный пунктКалуга
Район городаЛенинский
Микрорайонмикрорайон Правый Берег
Улицаулица Комфортная
Номер дома2
В избранное 1-к. квартира, 44 м², 11/17 эт.

Kвapтиpа в ЖК "Кoмфорт парк"!!!!Пoпулярный ЖK "Комфoрт Пaрк" - этo—Пpecтиж и кoмфopт: вcегда краcивая и уxоженная территория, coбствeнная паркoвая зoна, фoнтан, дeтcкиe игровыe площaдки, подземный и нaзeмный пaркинг, два лифта, ocтанoвки oбществeнного тpaнспopтa около дома.—Безoпасность: закрытая территория, система видеонаблюдения, консьерж.—Вся инфраструктура: школы, детские сады, детские и торгово-развлекательные центры, фитнес-центры, салоны красоты, кафе и пиццерии, бассейны, ледовый дворец "Космос", экопарк "Биосфера" с зоопарком, аттракционами и рестораном; горнолыжный комплекс "Квань"; сетевые гипермаркеты "Лента", "Глобус", "Магнит", "Пятерочка", "Да"; Губернский парк - всё в шаговой доступности!—До центра города, до пляжа р. Ока, Городского парка культуры и отдыха, музея Космонавтики - 7-10 минут.Квартира расположена на 11 этаже 17 - этажного монолитного дома 2015 года постройки.Общая площадь - 44 , Один собственник.Квартира без обременений.

Расположение

Важно! На карте не всегда указано точное местоположение. Более точную информацию можно узнать у менеджера, разместившего объект