Сдается офис
Обзор№ - 24099
| Арендная плата (Помесячно) | 40 000 |
|---|---|
| Цена кв.м. в год | 0 |
| Ремонт | Косметический |
| Тип парковки | На улице |
| Тип аренды | Прямая |
| Вход cian | Общий со двора |
| Индив. Отопление | Есть |
| Коммунальные услуги включены | Нет |
| Возможное назначение | Офис |
| Состояние cian | Офисная отделка |
| Планировка cian | Кабинетная |
| Можно с детьми | Да |
| Комнат в квартире | 10 и более |
| Можно курить | Нет |
| Разрешены вечеринки | Есть |
| Отчетные документы | Есть |
| Планировка avito | Кабинетная |
| Отделка помещения коммерческая | Офисная |
| Право собственности | Собственник |
| Залог (avito) | 1 месяц |
| Способ связи avito | По телефону и в сообщениях |
| Тип недвижимости (Гипернн) | Здание |
| Ремонт коммерческая | с отделкой |
| Тип дома cian | Кирпичный |
| Вариант задания цены (avito) - Аренда | в месяц |
| Статус готовности | В эксплуатации |
| Удаленность от дороги (авито) | Первая линия |
| Этаж дополнительно (авито) | Несколько этажей |
| Статус земли cian | Земля промышленного назначения |
| Отопление - коммерческая avito | Автономное |
| Тип коммерческой | Офисное помещение |
| Площадь, кв.м. | 105 |
| Этаж | 2 |
| Этажность | 2 |
| Класс здания | C |
| Тип здания | отдельно стоящее здание |
Адрес
| Населенный пункт | Калуга |
|---|---|
| Район города | Октябрьский |
| Микрорайон | микрорайон Маяковка |
| Улица | улица Складская |
| Номер дома | 10 |
В избранное Сдается офис
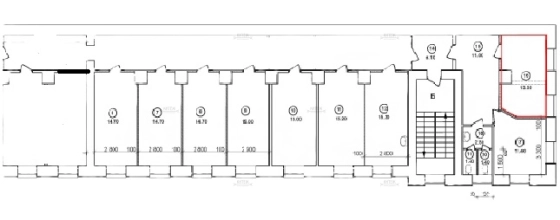
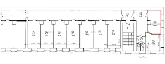
Сдается коммерческое помещение свободного назначения общей площадью 105 квадратных метра на улице Складская дом 10.
Помещение разделено на 5 кабинетов по 13-25 квадратных метра. Есть возможность расширения до 10 кабинетов.
Офисы оборудованы столами и стульями, есть возможность сдачи пустого пространства.
Рядом большое парковочное пространство.
Отлично подойдет для офиса крупной фирмы, складские помещения и тд
Рассматривается аренда части помещения от 2 офисов.

























