Коммерция в Центре Балабаново.
| Стоимость | 23 600 000 |
|---|---|
| Ремонт | Косметический |
| Площадь участка, сот | 750 |
| Тип сделки авито коммерческая | Продажа |
| Тип парковки | На улице |
| Вход cian | Отдельный с улицы |
| Состояние cian | Типовой ремонт |
| Планировка cian | Смешанная |
| Cian Линия домов | Первая |
| Планировка avito | Кабинетная |
| Отделка помещения коммерческая | Офисная |
| Право собственности | Собственник |
| Тип недвижимости (Гипернн) | 1/2 дома |
| Статус готовности | В эксплуатации |
| Мощность электросети, в кВт | 25 |
| Отопление - коммерческая avito | Центральное |
| Тип коммерческой | Помещение свободного назначения |
| Площадь, кв.м. | 349 |
| Этаж | 1.2 |
| Этажность | 2 |
| Тип здания | Бизнес-центр |
| Населенный пункт | Балабаново |
|---|---|
| Улица | улица 1 Мая |
| Номер дома | 2 |
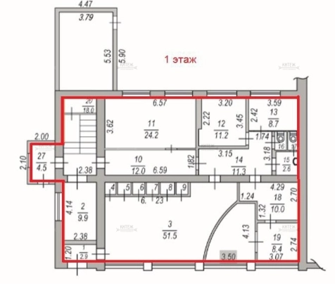
Продаю 1/2 часть офисно-торгового двухэтажного кирпичного здания. Здание расположено в центральной части города Балабаново, на пересечении улиц Боровская и 1-го Мая. Рядом находится городской рынок, отделения Сбера, уютный скверик.
В настоящее время все помещения сданы в аренду, приносят стабильный доход. Якорные арендаторы - Форабанк (занимает весь второй этаж), обувной магазин Zenden (занимает часть первого этажа) На первом этаже ещё находятся парикмахерская и швейная мастерская.
Покупка здания является хорошей инвестицией, которая будет многие годы приносить стабильный доход. Расположение и инфраструктура вокруг привлекательны для арендаторов, что гарантирует спрос на эти помещения всегда.
Содержание здания не обременительно, срочных финансовых вложений не требует.

































