Дом 95м2 Городенская Долина
| Стоимость | 7 500 000 |
|---|---|
| Комнат в доме | 3 |
| Категория земли | ИЖС |
| Тип комнат | раздельные |
| Отопление | Индивидуальное |
| Тип строения | Дом |
| Площадь, кв.м. | 95 |
| Площадь участка, сот | 5.02 |
| Этажность | 1 |
| Материал стен | Блочный |
| Населенный пункт | Калуга |
|---|---|
| Район города | Октябрьский |
| Микрорайон | микрорайон Турынино-3 |
| Улица | улица Кемеровская |
Новый готовый дом 95 кв.м. со всеми коммуникациями в коттеджном посёлке Городенская Долина.
Город Калуга, район Турынино-3, новый коттеджный посёлок Городенская Долина.
Продаётся новый 1-этажный дом 95 кв.м., расположенный на земельном участке 502 кв.м.
Дом построен из газоблока 400 мм D500. Фундамент - железобетонный, монолитный, комбинированный. Фасад - долговечная и неприхотливая штукатурка "Короед". Окна ПВХ Rehau 70 мм. Крыша металлочерепица. Входная металлическая дверь. Утеплённый потолок 250 мм.
Коммуникации. Газ заведён на участок. Электричество в доме. Вода - скважина. Канализация - септик.
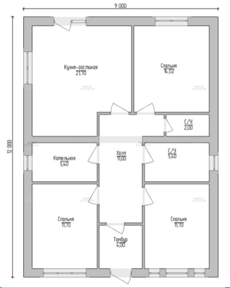
Очень удобная планировка! Входной тамбур, центральный холл, три отдельных спальни, кухня-гостиная 21,7 кв.м., два санузла, котельная.
От дома до школы на машине 6 минут. В непосредственной близости вся инфраструктура микрорайона Турынино - магазины, остановки, мини-рынок и т.д.
Звоните! Приглашаем на просмотры!











