Дом 117 кв.м. Двуречье
| Стоимость | 13 600 000 |
|---|---|
| Комнат в доме | 3 |
| Категория земли | ИЖС |
| Тип комнат | раздельные |
| Отопление | Индивидуальное |
| Водоснабжение avito | Центральное |
| Канализация avito | Центральная |
| Газ avito | По границе участка |
| Тип строения | Дом |
| Площадь, кв.м. | 117 |
| Площадь участка, сот | 10 |
| Этажность | 1 |
| Материал стен | Сэндвич-панели |
| Населенный пункт | Двуречье экопосёлок |
|---|
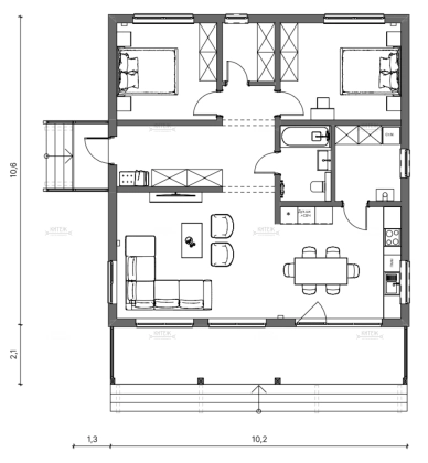
Современный коттедж в скандинавском стиле с разноуровневой крышей, панорамным остеклением, просторной гостиной, двумя спальнями и большой крытой террасой.
Готовый дом 117 кв.м. по проекту "Пикассо" на земельном участке 10 соток.
Большие панорамные окна создают ощущение свободы и стирают границы между внешним пространством и внутренними помещениями.
Слева от входа располагается приватная часть дома: 2 спальни, ванная комната и котельная, а справа — наполненная светом гостиная - кухня и открытая с трех сторон терраса, где вы будете проводить все время, пока позволяет погода.
Дом фабричного производства построен по Prefab технологии из панельно-каркасного домокомплекта заводского изготовления. Материалы из профессиональной линейки, соответствующие европейским стандартам. Древесина камерной сушки 1,2 сорта. Утеплитель - каменная вата. Утепление крыши цоколя - 250 мм. 5 лет гарантия на дом.
Бетонированная отмостка. Водосточная система. Дренажная система. Закладные под коммуникации. Черновая отделка.
Фундамент: монолитная ж/б плита. Фасад: декоративная штукатурка + имитация бруса. Остекление: VEKA Softline Premium 70мм, ламинированные снаружи. Кровля: мягкая кровля.
Земельный участок 10 соток, ИЖС, в собственности.
Все центральные коммуникации. Оптоволоконный интернет.
Проект ландшафтного дизайна в подарок!
Эко-посёлок Двуречье в 15 минутах от Калуги. Свой спуск к реке Оке. Охраняемая территория. Асфальтированные дороги. Закрытый въезд.
Ждём Ваших звонков и приглашаем на просмотр!















































