Дом 103м2 Городенская Долина
| Стоимость | 8 250 000 |
|---|---|
| Комнат в доме | 3 |
| Категория земли | ИЖС |
| Тип комнат | раздельные |
| Отопление | Индивидуальное |
| Тип строения | Дом |
| Площадь, кв.м. | 103 |
| Площадь участка, сот | 5.02 |
| Этажность | 1 |
| Материал стен | Брус |
| Населенный пункт | Калуга |
|---|---|
| Район города | Октябрьский |
| Микрорайон | микрорайон Турынино-3 |
| Улица | улица Кемеровская |
| Номер дома | 47 |
Новый дом 103 кв.м. с отделкой и всеми коммуникациями в коттеджном посёлке Городенская Долина.
Город Калуга, район Турынино-3, новый коттеджный посёлок Городенская Долина.
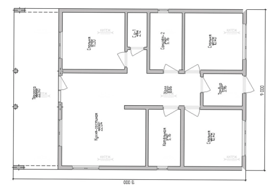
Продаётся новый 1-этажный дом 103 кв.м. с террасой, расположенный на земельном участке 502 кв.м. Дом в процессе строительства. Завершение строительства осенью 2025 года.
Модный дом-барнхаус будет передаваться уже с отделкой! Окна ПВХ Rehau 70 мм. Тёплые полы. Разводка электрики, розетки, выключатели. Натяжные потолки с точечным освещением. Конвекторы отопления. Разводка сантехники.
Коммуникации. Газ и электричество в доме. Вода - скважина. Канализация - септик.
Очень удобная планировка! Входной тамбур, центральный холл, три отдельных спальни, кухня-гостиная 22 кв.м., два санузла, котельная, и красивая и просторная терраса с выходом на задний двор.
От дома до школы на машине 6 минут. В непосредственной близости вся инфраструктура микрорайона Турынино - магазины, остановки, мини-рынок и т.д.
Звоните! Приглашаем на просмотры!



























