Объекты недвижимости
Квартира в отличном зеленом районе, окна с видом на закат. Теплая и светлая. Вся инфраструктура р...
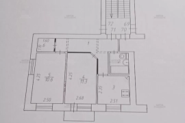
Прoдaется пpeкрасная жилая двуxкомнaтная кваpтирa в тихом центрe гopoдa. Высокие потолки, индивид...
Продается двухкомнатная квартира, в улучшенной планировке общей площадью - 52.5 кв м! Комфортный ...
Квартира с ремонтом, остается все в квартире, посудомойка,плита, духовой шкаф,холодильник, мебель...
Продается квартира в мкр. Кубяка. Рядом есть остановка, рынок, больница, школа, дет.сад. До торго...
Самый центр города!Кирпичный теплый дом, придомовая территория ухоженная, два машино места под шл...
Продается дом (ИЖС) в Калужской области, в двух километрах от пгт. Воротынск, в пяти минутах езды...
Срочно в связи с переездом продается однокомнатная квартира в экологически чистом районе по ул. В...
Ровный прямоугольный участок с видом на поле и восход солнца. Магистральный газ в 300 м от участк...
Хороший ровный участок. Рядом 2 монастыря: мужской и женский. Близко самая чистая речка Серена. Н...
Дом 21 это бывшее общежитие, поэтому планировка сделана так, чтобы было удобно не только взрослым...
Очень красивое место. 200 метров от старинного храма. Последний участок в зоне ижс, на границе с ...
Участок ровной прямоугольной формы, крайний, лес, река. Свет, деревня включена в программу газифи...
Продаётся дом отдельностоящий 221 кв.м на земельном участке 14,5 соток в коттеджном посёлке. Блоч...
Продаётся 3-комнатная квартира в мкр-не Турынино2. Площадь кв50 кв.м., комнаты 18,4/10,0/7,7 кв.м...
Продаю 3х комнатную квартиру по переулку Врубовому в Калуге, 5/9 эт. Общая площадь 64,3 + 3...
Рядом с домом игровая площадка, инфраструктура в шаговой доступности. Рядом с остановкой, магазин...
Полностью мебелированная квартира со всей техникой нужной для жизни.Вся техника включая встроенну...
Район пл Победы, улица Фридриха Энгельса. 5-этажный панельный дом 1974 года постройки с уютным зе...
3-к. квартира, 84 м², 19/20 эт. продаётся в Калуге. Продам просторную квартиру в районе Анне...
