2к 63,1 м2, Академический 3-й

Обзор
Стоимость
6 685 420
Название ЖКАкадемический
Стадия строительствастроится
Год постройки2025
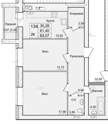
Площадь, кв.м.63.07
Площадь кухни, кв.м.10.9
Жилая площадь30.3
Этаж8
Этажность9
Комнат в квартире2
Материал стен Кирпич
ОтоплениеИндивидуальное
Идентификатор корпуса жилого комплекса в базе Яндекса3319673
Статус Недвижимости АвитоКвартира
Тип парковкиНа улице
РемонтТребует ремонта
Способ связи avitoПо телефону и в сообщениях
Узаконена ли планировкаЕсть
Адрес
Населенный пунктКалуга
Район городаЛенинский
Микрорайонмикрорайон Правый Берег
Улицапроезд 3-й Академический
Номер дома10
В избранное 2к 63,1 м2, Академический 3-й

3-й Академический проезд, д.10 - девятиэтажный кирпичный 4-подъездный дом с поквартирным индивидуальным отоплением завершит комплекс из трёх домов.

Дом удобно расположен на Правобережье в районе со сформированной и богатой инфраструктурой. Школы, сады, магазины, торговые центры, кафе и рестораны, спортивные комплексы - всё рядом. При этом до центра города 15 минут.

В продаже 2-комн. квартира 63,1 кв.м. с изолированными комнатами 17,6 + 12,7 кв.м. и кухней 10,9 кв.м. Из кухни выходит лоджия 3,3 кв.м. Раздельный санузел. Отдельная кладовая 2,9 кв.м. 

В квартире выполнена стяжка, штукатурка по периметру. Электрика введена в квартиру. Установлен настенный двухконтурный газовый котёл, разведено отопление. Окна стеклопакеты ПВХ. Входная дверь технологическая. Межкомнатных перегородок нет. Остекления на лоджии нет.

Благоустроенная придомовая территория с детской площадкой и парковочным пространством.

Возможна покупка с использованием льготной ипотеки.

Квартиры реализуются в соответствии с 214-ФЗ с регистрацией договоров участия в долевом строительстве.

Срок сдачи 4 квартал 2025 года.

Звоните сегодня! С каждым днём свободных квартир в продаже остаётся всё меньше.

Расположение

Важно! На карте не всегда указано точное местоположение. Более точную информацию можно узнать у менеджера, разместившего объект