3-к. 123,3 м2, 3/4 эт. Заречная
Обзор№ - 20118
| Стоимость | 13 563 000 |
|---|---|
| Ремонт | Требует ремонта |
| Балкон | 2 лоджии |
| Год постройки | 2020 |
| Отопление | Индивидуальное |
| Санузел | 2 санузла |
| Комнат в квартире | 3 |
| Площадь, кв.м. | 123.3 |
| Жилая площадь | 47.9 |
| Площадь кухни, кв.м. | 12 |
| Этаж | 3 |
| Этажность | 4 |
| Материал стен | Кирпич |
| Тип комнат | раздельные |
| Состояние | Без отделки |
Адрес
| Населенный пункт | Калуга |
|---|---|
| Район города | Ленинский |
| Микрорайон | микрорайон Правый Берег |
| Улица | улица Заречная |
| Номер дома | 127 |
В избранное 3-к. 123,3 м2, 3/4 эт. Заречная
Правый Берег, улица Заречная. Вся инфраструктура рядом (школа, детские сады, рынок, магазины), остановка общественного транспорта.
Новый 4-подъездный 4-этажный кирпичный дом с огороженной территорией двора. Дом сдан. Высокое качество строительства. В квартирах выполняется стяжка, штукатурка, электроразводка, настенные двухконтурные газовые котлы.
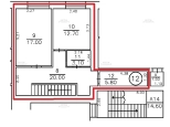
В продаже двухуровневая 3-х комнатная квартира 123,3 кв.м. с кухней 12 кв.м. и двумя лоджиями. Квартира не угловая.
Благоустроенная территория двора, есть детская площадка, подземный отапливаемый паркинг с системой пожаротушения.































