Заречная 127
Обзор№ - 16400
| Стоимость | 95 000 |
|---|---|
| Стадия строительства | сдан в эксплуатацию |
| Год постройки | 2020 |
| Материал стен | Кирпич |
Адрес
| Населенный пункт | Калуга |
|---|---|
| Район города | Ленинский |
| Микрорайон | микрорайон Правый Берег |
| Улица | улица Заречная |
| Номер дома | 127 |
В избранное Заречная 127
Новый кирпичный дом с огороженной территорией и подземной парковкой на Заречной 127.
- Закрытая огороженная территория с благоустроенным двором и парковочными местами.
- Отапливаемый подземный паркинг с системой пожаротушения.
- Индивидуальное отопление. Комфорт в использовании и экономия на коммунальных платежах.
- Пешая доступность инфраструктуры Правобережья. Буквально в нескольких шагах магазины, школа, садик, остановки, рынок.
4-этажный 4-подъездный кирпичный дом на 32 квартиры с закрытой территорией.
Отделка квартир: стяжка, штукатурка + шпаклёвка, электроразводка, газовый котёл, радиаторы. Возможна покупка квартиры с полным ремонтом "под ключ".
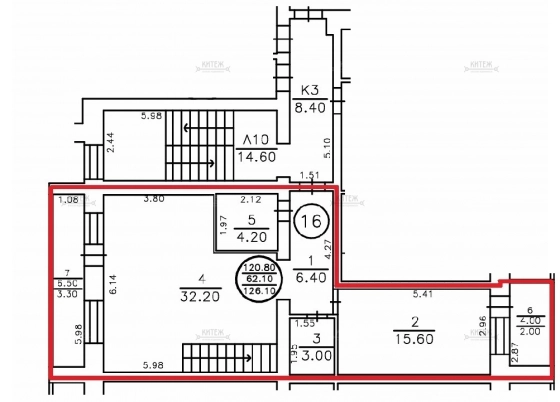
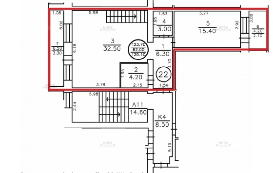
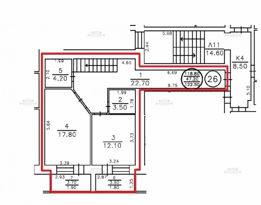
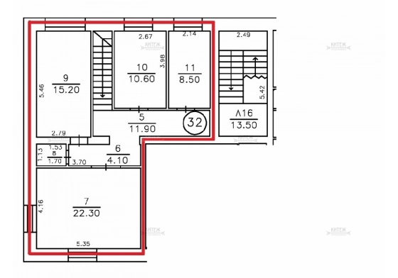
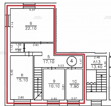
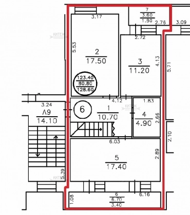
Уникальные удобные планировки с большими кухнями, а также в наличии двухуровневые квартиры, позволяющие реализовать любые дизайнерские фантазии.
Реализуйте мечту о своей уникальной квартире в одном из лучших мест Правобережья!
Расположение



















































